Huiini Shipping Container House

Elements

5 Container(s)

Size

1292 Foot²

Age

Built In 2013

Levels

2 Floor(s)
Location: Latin America > Mexico
Address: Bosque de la Primavera, Jalisco, Mexico
Project Type(s): Single Family Residential
Bedrooms: 2
Bathrooms: 3

Note: Map location may not be exact. Click to open in Google Maps.

Huiini Shipping Container House

Description

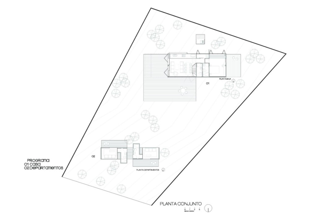
This bold container home is actually two separate structures. The main home is built with four containers, while the guest house with two studios inside is built with a single container.

The retired owner built this container house in the Primavera Forest, just outside the Zapopan area of Guadalajara, Mexico. So while it has magnificent access to the forest, it’s still relatively close to one of Mexico’s largest cities.

The main home makes use of stacked containers stacked in a two-by-two configuration, with the top-level parallel but slightly shifted over from the bottom level. This gives room for a second-floor deck and a first-floor covered porch.

Unlike most two-story container homes, this one actually uses the full height of both containers to create a raised ceiling. As you can see in the pictures, the living area feels huge, not just because of the large windows, but also because of the double-height interior ceiling.

There was a bit of structural engineering work to create this high ceiling (removing the roof of the bottom containers and the floor from the top containers), but as you can see, the results are impressive. This double-height configuration spans effectively the entire area where the two levels intersect with each other.

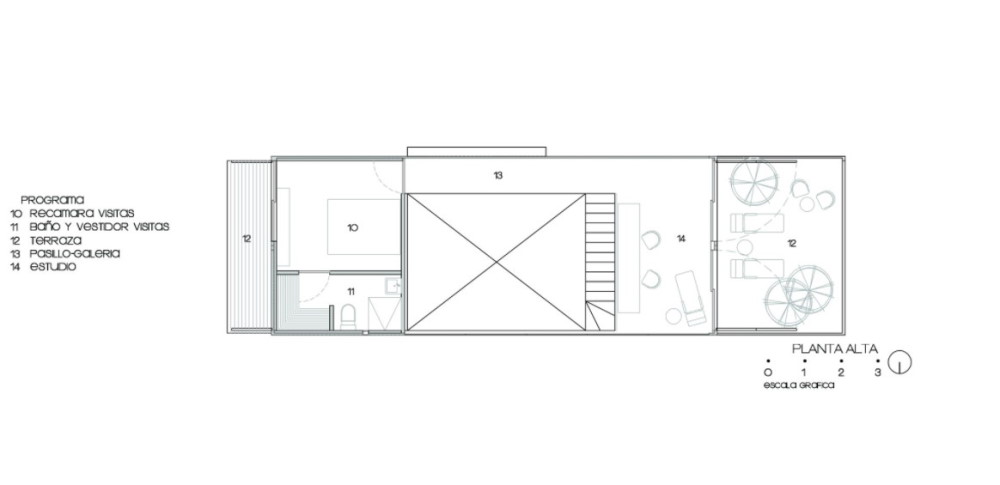
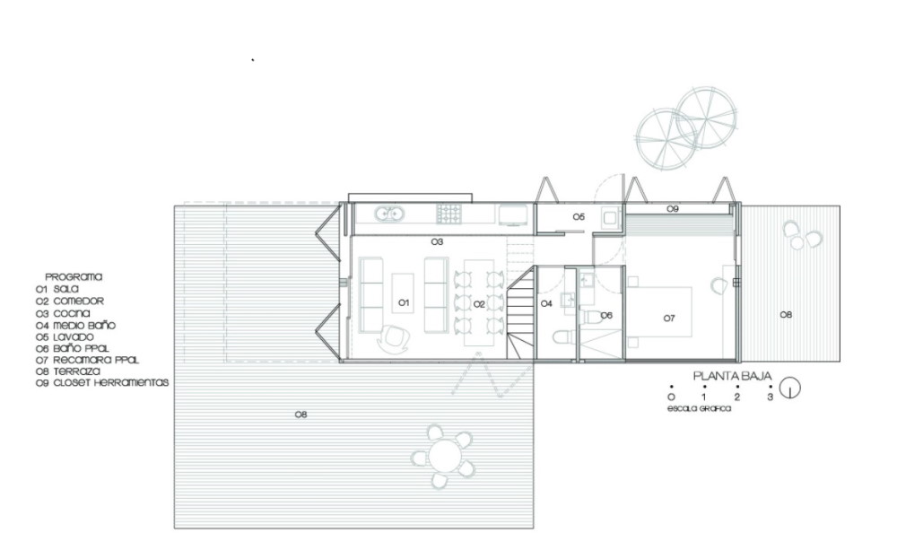
However, in the sections that extend past the main living area, including the cantilevered second floor, you’ll find areas of the home with single-height ceilings. The first floor holds the master bedroom and bathroom in addition to the common spaces we’ve already highlighted. 

On the second floor are an additional bedroom and bathroom, plus a lounge area opening up to the deck. Connecting both sections of the second floor is a catwalk-style walkway with a railing so you can look down into the living room.

Across the small lawn are the guest studios in the fifth container. This layout makes use of two blow-out areas that give additional width beyond the container’s normal 8 ft in order to fit a shower. The studios are very simple, with a sleeping area, adjacent deck, and bathroom. Everything visitors need for a bit of privacy without wasting space that is better used in the common areas of the main house.

Contact Info

No Contact Information is available

Professionals

If available, designer and/or builder information will be provided below and can be clicked for more detailed information.
No information available or DIY Project
worksheet-full

Image Gallery

(Click for Full Size)

Sources

Comments

2 Responses

Leave a Reply

Your email address will not be published. Required fields are marked *