Elements
Size
Age
Levels
Note: Map location may not be exact. Click to open in Google Maps.
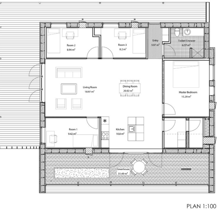
The Upcycle Container House is a unique eco-friendly house built with two shipping containers and made up of recycled and upcycled building materials. Set in Nyborg, Denmark, it was an experimental project that aimed to reduced carbon emissions compared with standard houses.
The container foundation is made up screw piles made of recycled steel, an option we don’t see all that often. The roof is made of aluminum sheeting, and the cladding facades are made of a composite material.
Interestingly, paper wool is used for the ceiling and wall insulation. It would be interesting to find out how this insulation material has handled the cool weather of Denmark.
This single-story house is built inside of and between the two parallel shipping containers. This middle space takes advantage of clerestory windows that offer abundant natural light.
The home has a greenhouse, sitting room, kitchen, four bedrooms but only one bathroom, for a grand total of 1390 sq. ft of floor area. The greenhouse, in particular, is noteworthy, as it’s outside the footprint of the two containers and is covered in heat-retaining bricks. It’s also a nice patio area as well.
The interior finishes of the house showcase the sustainable goals of the designers. For instance, exposes oriented strand board (OSB) is used for many of the walls. And coins are embedded in epoxy to form some of the flooring.
With a very modern yet minimalist kitchen that is straight out of Scandinavian design, and a spacious living and dining area with abundant glass windows, this entire house is an amazing place to live.
Interested in Container Homes? You need our FREE cheat sheets to help decide if containers are right for you!