Grillagh Water House

Elements

4 Container(s)

Size

1440 Foot²

Age

Built In 2014

Levels

2 Floor(s)
Address: 30 Gortinure Road, Maghera, Northern Ireland, United Kingdom
Project Type(s): Single Family Residential
Bedrooms: 3
Bathrooms: 1.5
Units: 1

Note: Map location may not be exact. Click to open in Google Maps.

Grillagh Water House

Description

Some people appreciate the strength and versatility of shipping containers but don’t really enjoy their aesthetic. For these people, a container home with external cladding is a way to get the upside of containers while allowing their home to appear however they want.

The Grillagh Water House is one of the finest examples of a shipping container home with cladding ever built. A passion project with a great backstory for local architect Patrick Bradley, this home captured the world’s attention when it was completed in the Northern Ireland portion of the United Kingdom.

Let’s start with the name. The home sits mere steps from the bank of the Grillagh River, thus the name Grillagh Water House. This beautiful property is a working farm that has been in Patrick’s family for over 200 years and is home to many grazing cattle and sheep. But it’s also where much of Patrick’s family lives, and they were pretty hesitant about Patrick’s idea for a shipping container home. 

The family farm is adjacent to the Drumnaph Woods and just outside the town of Maghera. Patrick picked the most picturesque location on the land for his homesite, a small bluff overlooking the river with views of the fields, forests, and distant mountains beyond. Fearing a container home that was too industrial in appearance for the tranquil setting, Patrick’s family wasn’t shy about their reservations.

But the choice to use shipping containers for the home was not one Patrick took lightly. In fact, it wasn’t even his first choice.

The Design of Patrick’s Container Home

After designing the layout of the home one night, Patrick quickly realized that a traditional build would quickly blow his budget. For Patrick, container construction was simply a way to get the layout he wanted at a price he could afford (while proving that modern designs were possible on a budget). What made his floorplan so costly to build via traditional means?

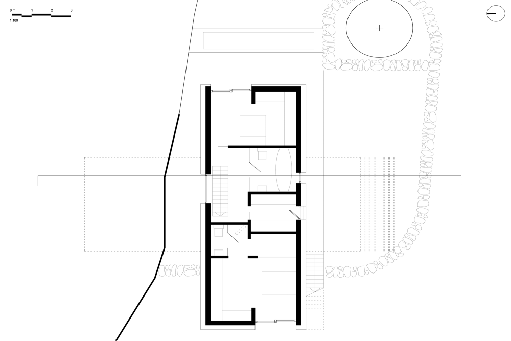
The design of the Grillagh Water House is simple in theory, but complex in execution. The form is cross-shaped, with two 45-foot containers facing east-west on the bottom level, then two more 45-foot containers stacked on top and oriented north-south.

The result is a home with multiple bridged and cantilevered appendages jutting outward from the hillside. It was conceptually inspired by the world-renowned Falling Water house designed by Frank Lloyd Wright in Pennsylvania, though on a much smaller scale.

And much like Falling Water, Patrick wanted the Grillagh Water House to seamlessly blend into the natural environment rather than sit apart from it. Doing so meant camouflaging the shipping container structure with other exterior materials.

Noticing that large barns and other agricultural buildings seemed to visually fade into the countryside, Patrick decided that darker colors and raw textures would be the way to ensure his home didn’t look out of place. He also decided that the two levels of the home would be visually distinguished on the exterior, with a gray expanded metal on the top that mimicked the sky, and a Corten steel lower that would naturally age into a rusty earth tone.

The clear visual change between upper and lower levels mirrored the distinct functions of the two spaces on the interior. The upstairs floor was the public area, with the kitchen, living, and dining rooms. It is also where you enter the home from the North, and includes a somewhat hidden third bedroom that Patrick initially used as a home office. Finally, large balconies on the south and west sides of the home are accessed from this level and provide incredible views with opportunities for outdoor living.

Downstairs you’ll find the home’s private area, with the two main bedrooms, bathrooms (including the famous ‘hanging bathtub’, check the pictures!), and a ‘boot room’ (what Americans might call a mudroom) which has an exterior door to the covered patio on the ground level. The staircase between the two levels is in the central area where the two linear spaces intersect each other.

Patrick says that he did a lot of research before starting to construction to ensure that the majority of issues could be identified and remedied during the design phase. He also used a quantity surveyor (essentially, a professional cost estimator) to ensure he was staying within his budget and adjusting when necessary.

Energy Efficiency in the Container Home Design

As with many other builders and designers, Patrick elected to use polyurethane spray foam insulation for his container home. Specifically, a product called WALLTITE.

While he could have insulated the exterior of the container, he choose to use the spray foam on the interior since he didn’t want the container’s corrugated metal walls exposed inside the home either.

With a thick layer of spray foam, Patrick says his home is virtually passive. He also used other design tricks to help keep the interior temperate, like a small elevation with no windows on the north side of the house. Rather, he tries to get solar gain during the winter months from the large windows on the other three sides. But you’ll notice the southern balcony has steel fins that help to shade the home at certain times of the year.

He also used green roofs to provide additional insulation on several parts of the house. But at the colder times of the year, he has a wood stove and in-floor hot loop coils that are heated with an LPG boiler.

The popularity of the Grillagh Water House

Patrick’s home was brought into the public consciousness due to gaining the attention of Grand Designs, a British television series about residential architecture. While still in the design phase, Patrick contacted the show and they came to visit and film him several times over the course of months.

When the episode featuring the Gillagh Water House finally aired, it became the most-watched episode in the show’s history. And it was later chosen as host Kevin McCloud’s favorite Grand Designs house, out of over 100 homes featured!

The attention from the show filled Patrick’s email inbox with thousands of messages from around the world and led to plenty of new business for his architecture firm. It also attracted the admiration of his peers in the architecture world, winning several awards including a Royal Institute of British Architects (RIBA) Regional Award (Northern Ireland) in 2015.

Overview of the Construction Phase

As previously mentioned, the team at Grand Designs came into the project early, before any work had been performed on-site. But due to filming schedules, Patrick was forced to compress the schedule a bit in order to get everything finished.

The timeline was accelerated in several ways. First, after sourcing the containers from  60 miles away in the coastal town of Bangor, they were trucked to a steel workshop where modifications began. In addition to holes for windows, wider rooms and utilities, additional reinforcing steel was welded into the containers to support the cantilevered sections. You can actually see the long steel I-beams that were added in some of the construction pictures.

Back at the family farm, a team began working on the foundation into the hillside. What was originally planned to be a series of 14 simple concrete pads quickly morphed into something a bit more complex A seam of hard basalt rock was found right in the building site, so heavy equipment was needed to excavate rock before the new foundations could be laid. By April, the foundations were completed and the removed rock was used to build a rock wall that lined the gravel drive approaching the house.

In June, it was finally time to start with the serious on-site work. The containers were delivered and craned into place in a day, then the real work began. At the height of activity, there were 35 workers on-site at the same time, frantically trying to finish the home before the deadline set by the Grand Designs team so the show could be released in September.

Essentially, they only had about ten weeks to finish the home, and Patrick later remarked that if he could change anything, it would be giving himself much more time for the construction. While continuing to do his day job as an architect for client projects, Patrick also was at the building site nearly every day pitching in wherever he could. But mainly, he counted on local contractors to do everything from building stud walls and spraying insulation to setting windows, adding wiring, and finishing interior surfaces.

Costs of the Grillagh Water House

From the start, Patrick knew that cost was going to be an important driver of the home’s design. As a self-employed architect, getting a sizeable mortgage would be difficult.

In the end, he was able to secure a £52,000 loan and scrape together much of his savings to arrive at a £100,000 budget. As the project moved toward completion, he elected for a few costly extras that eventually pushed the total cost up to £133,000 (roughly $220k based on 2014 exchange rates). Below, we’ll explore a select few of the larger line items that went into this total cost (this doesn’t include every cost though):

  • £14,000 for four 45-foot shipping containers
  • £10,000 for about 10 tons of reinforcing steel to strengthen the cut containers
  • £12,000 for foundations including rock excavation
  • £7,000 for spray foam insulation
  • £30,000 for high-end cabinetry

Due to the fact that he was being filmed for Grand Designs, Patrick was able to get some deals from his contractors and suppliers for higher-specification materials and equipment than he may have got otherwise. But in general, his costs are fairly accurate and someone else could have built a similar building for a similar cost, even if they weren’t featured on a TV show.

Summary

Container home architecture allows you to create almost anything you want. And what Patrick wanted was a home that cantilever out into the air above his farm, while looking nothing like a container. He certainly achieved that.

Some people may find the design too modern, or the cladding too bold, and that’s ok. Regardless of your feelings on the specifics of the aesthetics, you can appreciate the ingenuity of the layout and floorplan. And more importantly, admire Patrick’s tenacity in designing and building this home when so many people doubted his vision.

There’s so much to appreciate in the home, and it’s worth listing a few of our favorite small touches:

  • The bright colored front door on the stark north side wall
  • The window under the interior staircase that gives a view of the rocky hillside beneath the home
  • The ultra-modern bathroom that you’d never expect to find on a rural farm
  • The outdoor fireplace on the second-floor patio that attaches to a Corten chimney

To close, we’ll just say this: we’re so happy that there are creative, driven people out in the world like Patrick who are continually pushing the limits of container home architecture and inspiring all of us to dream bigger. Let us know what you think of this container house in the comments below.

Contact Info

No Contact Information is available

Professionals

If available, designer and/or builder information will be provided below and can be clicked for more detailed information.
No-Logo-Available

Patrick Bradley Architects

Designer
worksheet-full

Image Gallery

(Click for Full Size)

Sources

Comments

Leave a Reply

Your email address will not be published. Required fields are marked *