Naylor Container Home

Elements

3 Container(s)

Size

1140 Foot²

Age

Built In 2014

Levels

2 Floor(s)
Address: 6 Lawndale Avenue, Asheville, North Carolina, United States
Project Type(s): Single Family Residential
Bedrooms: 3
Bathrooms: 2

Note: Map location may not be exact. Click to open in Google Maps.

Naylor Container Home

Description

For those who wonder if ordinary people can build their own shipping container house, the Naylor Container Home is a great example to study. It’s a house that was built by an average family with no special skills and a tight budget. But it proves how container construction can be a method of not just owning your own home, but gaining the satisfaction of building it yourself.

In 2013, Ryan Naylor, Brook van der Linde, and their young daughter Soliel embarked on a mission to build their own home using shipping containers. They were attracted to container homes not only for their affordability and strength but also because they wanted their entire home to be an extension of their sustainability ethos. 

We wanted to build our home out of as many reused and re-purposed materials as possible.  We wanted to have as little an impact on the environment as we could with the construction of our home.  We just happened to stumble across the idea of using shipping containers while searching for other homes that reused materials in construction.

We decided to build the home out of shipping containers because it uses less energy to re-purpose them than to recycle them (melt them down and remold the metal into something else). They are also really cool looking and add a fun industrial feel to the home. They are metal so we can use magnets all over the walls and they are almost indestructible.  We also thought it would be cool to build the first shipping container home right here in my hometown!

The main advantage, in my opinion, is the environmental impact.  They also give a really awesome feel and look to the home.  Another benefit would be the strength since you can stack them up to nine high. They last practically forever and are great for adding metal additions to the interior or exterior of your home such as the hooks I welded to the containers in the living room.  They allow me to hang up to eleven hammocks at a time in my home.

Despite “Not really knowing what we were doing when we started,” they planned to build the majority of their home themselves (along with help from friends and a few contractors for key items like framing, electric, and welding). After committing to containers as the medium with which to build their home, their work really began. 

We planned and designed the architecture of the home over six months.  It took that amount of time to come up with the finances to actually invest in engineering and construction and to purchase the land.  

They went to a local bank in their town of Asheville, North Carolina, to get a loan for the land and materials. With the state of container construction back in 2013, plus a resume that was light on construction experience, they weren’t able to get a loan.

Thankfully, a private investor stepped in and gave them a $100,000 loan with a one-year payment deferment, which with careful budging they hoped would allow them to build their home. Being public about the trials and tribulations of their container home experience with their blog (Called 40×28, after the dimensions of their home’s floorplan in feet) introduced them to many helpful people and resources along the way.

With money in hand, they needed to find land to build on. They purchased a nearly 1/4 acre lot on the west side of Asheville. The land had a gentle slope, plenty of mature trees, and looked like a great place to build a container home.

To make their remaining dollars go as far as possible, Ryan scavenged everywhere from dumpsters to building renovation sites in search of surplus and excess materials. He had grown up with parents that instilled an appreciation for reusing and recycling, and he and Brooke were prepared to do just that for their home. What he was able to find is inspiring.

Plenty of lumber was able to be sourced, but there were several larger finds including windows and kitchen cabinets. They even found 100 CMU blocks to use for their foundation buried under some brush on their own land. Ryan described their material sourcing like this:

We redesigned the home as we found materials.  I looked in new-construction dumpsters all around town as well as tearing things out of demolition projects (with approval of owners) and purchasing items from resale locations such as Habitat’s Re-Store and from Craigslist.  It was really nice having full control over what we used in the home and how we designed each part. 

But finding materials was only the beginning of their journey. They still had to actually complete the build! It started with the foundation, which was a combination of a concrete slab, CMU footings, and Sonotube piers, all designed by their engineer.

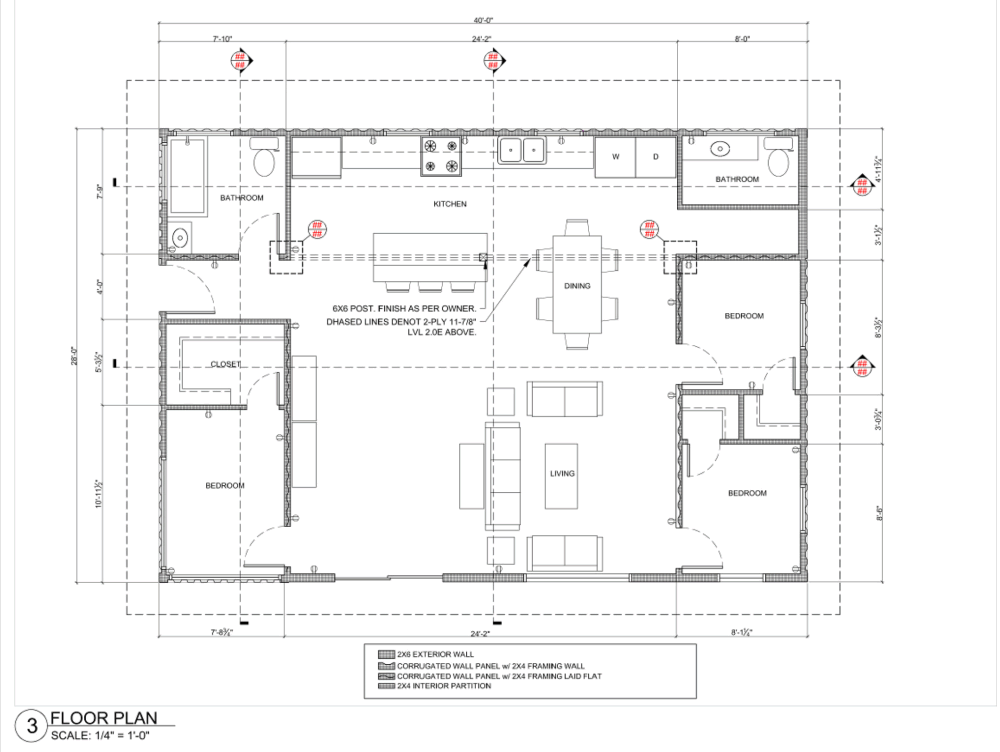
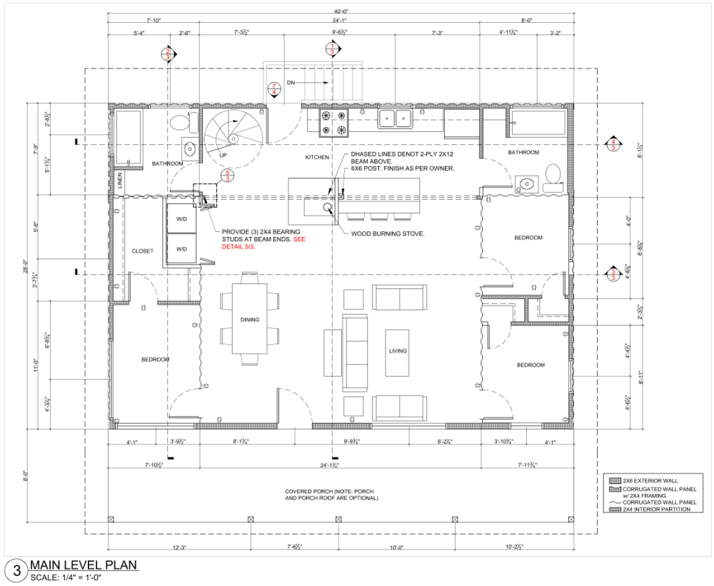
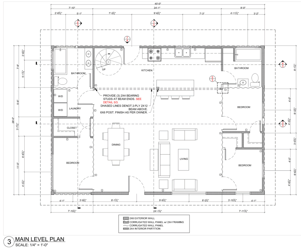
For the containers, they took a novel approach. Rather than purchasing three containers: one 40ft and two 20ft, they purchased two 40ft units and cut one of them in half. Both were high-cube containers that were well-used.

Cranes set the containers onto the foundation in a U-shape which formed a large part of the structure of the house. Remaining to be built was the front wall, back wall in the loft area, and the large sloping shed roof.

All of their framing was done with wood, using 2×4 walls. They did make the choice to turn their studs sideways (widthwise) in the container walls so that there was no thermal bridging between the container walls and the studs. They wanted to ensure that their insulation performed well.

We used open-cell spray foam insulation for the roof between the rafters and under the containers as well as the wall that connects the two 20-foot containers.  We used closed-cell spray foam for the container walls due to condensation from extreme temperature changes.  This is the only way to go. 

A lot of the dry-in and finish-out work in the house took advantage of materials that they had sourced and stored along the way. While using whatever materials you can find leads to less of a cohesive design theme, somehow the house’s combination of unique items worked.

But that doesn’t mean the overall design of the house wasn’t carefully planned out. Rather, they thoughtfully considered the orientation of the house on the land, the size and location of window overhangs, and even the window locations to take advantage of passive solar heating.

The nicest thing about the heating/cooling of the home, though, is the fact that our lot faces southwest which enables us to get full sunlight all day long through the huge windows upstairs in the winter.  With the 4-foot overhang on the roof, we get shade for most of the day in the summer.  This helps with the temperature in the house a LOT. 

Eventually, after about a year of construction, they were able to get the house completed. Their total cost was roughly $145,000 (which includes $30,000 spent on the land).

However, that was well over their originally all-in budget of $100,000. To make up the difference, they turned to crowdfunding, personal savings, and gifts from family.

As would be expected after undertaking a DIY project of this magnitude, there were a lot of lessons learned. Ryan shared the following words of wisdom:

Even though it was a hard material to work with, it was totally worth it in the long run.  I love living in this home, and all of my friends and family members always want to come over and stay here in the house. 

It’s got a great story behind it, and it has a positive impact on the world.  People can see that you can reuse, re-purpose, and recycle while still building a beautiful and functional home that will last for a very, very long time.

This was all a learning process, and I learned a good majority of how to build this house off of the internet (blogs, youtube, etc.) which proves that you can do anything that you put your mind to as long as you really believe in yourself and follow through!

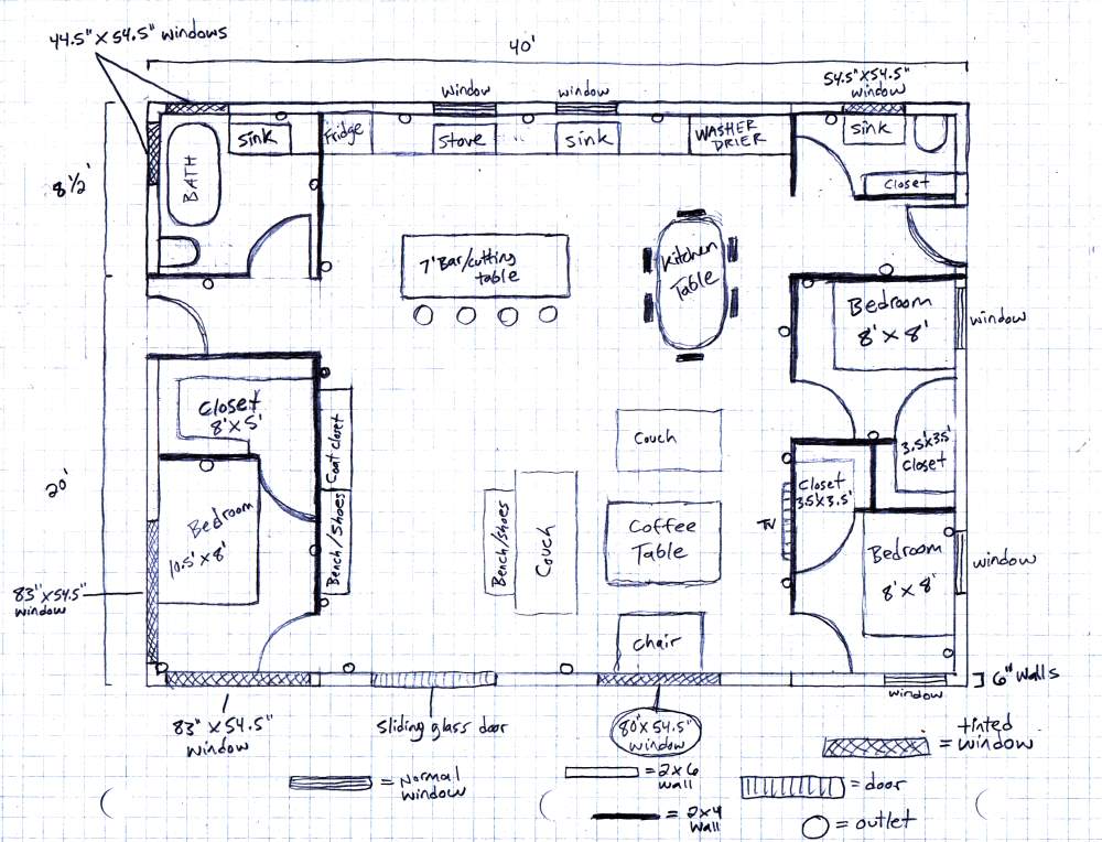
The end result was a three-bedroom, two-bathroom, 1120 square feet (1,440 square feet including the 2nd-floor loft) home that was built with the grit and determination of people convinced they could do it even when they didn’t quite know how at the beginning. They had a hand in nearly every phase and aspect of the construction, giving them technical skills, personal pride, and cost savings that are hard to completely quantify.

Though Ryan and Brook ended their relationship not long after completing their home, the structure still stands as a testament to their skill and will. Ryan continued living in the home afterward, but it was eventually sold in May of 2021 for $334,999. The new buyers are surely happy to know they live in Asheville’s first shipping container home, and a home that is loved by many from around the world.

Contact Info

Professionals

If available, designer and/or builder information will be provided below and can be clicked for more detailed information.
worksheet-full

Image Gallery

(Click for Full Size)

Sources

Comments

4 Responses

  1. Interested as a realtor and a homebuyer. My own will likely be 6+ months out .JI might have land to build (not yet). Curious about cost. Thanks.

    1. Our Container Home Cost Calculator (https://www.discovercontainers.com/cost-calculator/) is a good place to start. Below the calculator, you’ll also find a link to a more details article about cost estimating for container homes. Finally, the best way to get pricing is to have more clarity on what you want and then speak with some local builders to get rough estimates. Feel free to email us via the Contact page for more information.

Leave a Reply

Your email address will not be published. Required fields are marked *