Elements
Size
Age
Levels
Note: Map location may not be exact. Click to open in Google Maps.
Nick and his wife live purposeful lives. As they saw family and friends struggle with balancing time and money during their working years and then later toward the sunset of their lives, they decided to go in a different direction. Rather than have a hoarding mentality, they wanted to focus on sharing with their family, friends, and community.
As they thought about what they wanted to leave behind as their legacy, they started to formulate an idea. It wasn’t money but experiences and memories they wanted to give to their children and leave for them when they are gone.
Now you may be thinking, what does this have to do with container houses? Well, Nick and his family decided that a container home set about 2500 feet up in the beautiful mountains of western North Carolina was the missing puzzle piece. Their Appalachian Container Cabin was something they could work on together, use to help invest in the local community, share with close family and friends, and even make a little income off of as a short-term rental.
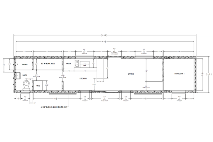
The size of the home is a bit deceptive as it uses two 20ft containers underneath one 40ft container, and yet only the 40ft container is livable space. Inside, you’ve got a bathroom and small kitchen, three bunk beds and a queen bed, plus a small living room with a couch.
All of those trapping of home fit in about 320 SF, with another 320 SF of storage from the lower 20ft containers. There are several hundred more square feet of deck space split across two levels. And more recently, they’ve enclosed the area between the two bottom containers and added a garage door, giving additional storage space.
But let’s face it, in a location like this, you won’t be spending much time indoors. Set deep in the Nantahala National Forest with views of the Appalachian Trail, this container house feels a million miles away from the worries of city life. And yet, it’s a reasonable drive from both Franklin, North Carolina, and Clayton, Georgia.
While it certainly did take money to build their container home, it also took planning, problem-solving, teamwork, and plenty of sweat (so much so, that they were actually featured on the HGTV/DIY show ‘Containables’)! However, no amount of money can buy how good it feels to lay your head down in a home you had a hand in building on land you helped clear.
Nick’s container home certainly has a great backstory, but the amazing view and unique design are sure to inspire you as well. More on that and the challenges they faced in our interview below.
We built the Appalachian Container Cabin as a place to share with our family and friends, and have started using it for short term rentals as well so we can share it with others. The property where the cabin sits is truly unique. It’s a 30-acre parcel of land, on top of a mountain, with a long-range view of the Smokey Mountains and the Appalachian Trail. The cabin takes full advantage of the views with some expansive outdoor decks and a huge firepit.
When we set off on our adventure to build a cabin in the Smokies, we considered all sorts of construction methods – from rebuilding a vintage Airstream to high-quality timber frame construction. Ultimately, we wanted to build something that was really modern and truly unique, so we went the container route. We couldn’t be happier!
Finding a contractor that has experience with building shipping containers structures was really hard. Containers are actually not that different than normal construction, other than the outside shell being metal, but the idea of working with them scares away a lot of well-qualified contractors.
We initially hired a contractor to handle the construction of the top 40-foot container but were left in a bind when the contractor didn’t complete the job and the majority of the work that they did do had to be redone. We couldn’t find many contractors to help complete the project, so we rolled up our sleeves and got to work. We have now completely rebuilt the cabin ourselves and it’s been an incredible learning experience.
The Appalachian Container Cabin was designed as a multiphase project so that we could expand it over time as we have the resources. This has allowed us to build the foundation and a small, livable space quickly, and then easily add onto the cabin down the road as our family and budget grows.
The entire cabin is built from three shipping containers: one 40-foot container sits across the top of two 20-foot containers. All three containers are one-trip high-cubes so we have the extra headroom which we highly recommend to everyone.
The two bottom containers sit on piers and serve as storage areas for now. The top 40-foot container offers a bit over 300 square feet of living space, but we hope to expand that in the future. The front edge of the 40-foot container is actually resting on a poured concrete retaining wall since we built our cabin on a steep slope.
Due to building on a hill, we also decided to do some terracing around the cabin to provide some flat areas. Using large boulders we found around our property, we created two different tiered, rock walls that allowed us to turn a steep slope into a functional backyard. The backyard now features a huge 30-foot diameter firepit and a 20-foot x 10-foot flat spot for camping.
We designed the cabin with our family and friends needs in mind, but also considered the use of the cabin for short term rentals when building it. The primary design constraint was to build a tiny home and prevent the urge to increase the size without sacrificing any functionality. Containers are the perfect size to build something that you can use without giving into the typical scope creep you might have in a more traditional construction project.
With this in mind, we focusing on staying small and functional so that we would be able to have all the conveniences of a modern home when inside the cabin, but were encouraged to spend the majority of our time outdoors. Therefore, the cabin has nearly 2,000 square feet of deck space! There is a large front deck, a large back deck, and a large top deck.
We recently added a roof to our cabin that allows us to enjoy the outdoor space when it’s raining – and it rains quite a bit in the Smokey Mountains! The cabin allows us to enjoy all the amenities of a modern HGTV-style home when we are inside and to take in the unobstructed long range views of smokey mountains when we are outside.
Our two favorite things about the design of the cabin are not about the cabin itself, but about what the cabin allows us to do as a family. First, we love to sit on the top deck in Adirondack chairs, gaze at the crystal clear Milky Way and spot satellites and shooting stars as they streak across the sky. Second, we love to huddle around a huge fire on a crisp fall night and watch the embers from the fire dance off like fireflies into the distance which is coated with all the brilliant colors that the fall harvest has to offer.
Due to the high moisture environment, we used closed-cell foam insulation. Insulation is one of those things that is really hard to spend money on because it’s expensive and you don’t really see it after you finish the interior, but it’s definitely worth the investment.
The county that we are located in required a professional engineer to sign off on the design of our cabin. We worked with an incredibly helpful PE from CETech Engineering that not only worked with us on our design but even helped out when we had misunderstandings with local contractors. If you are building a container in the Western North Carolina area, we highly recommend CETech Engineering.
The original timeline for our project was very short because at the time we were expecting our third child! Our goal was to have the cabin built before she was born. Nothing like a due date to help drive a deadline 🙂 We ultimately didn’t meet our deadline and learned that there is much about the construction industry that was far outside our control, but the aggressive schedule helped us make some significant progress in a short period of time.
The journey began when we purchased the property around 2015. We spent considerable time camping on the land which gave us the chance to really discover what we wanted to do. For a couple of years, we would spend weekends at our property clearing trees and brush, thinking about the ideal placement for the structure, and optimizing the views we would eventually enjoy from our back deck.
We were fortunate to find an undervalued piece of land that had incredible views. Most of the people who had considered the property before us had considered it to be unbuildable due to the rocky terrain and difficult climate. Using a container design, we were able to design and build a good portion of the original cabin offsite and then have it delivered in a semi-completed state. We finished the project onsite but had the benefit of being protected from the harsh environment since we used a container.
Gaining approval from the local building and permitting department started off a bit difficult because we were the first to build a container structure in the area. This meant that we had to have a lot of conversations with local inspectors to ensure that they were comfortable with our plan.
Having a PE sign off on our plans and advise the county on our building approach helped significantly in overcoming the concerns they had. Additionally, we found the inspectors to be incredibly helpful. They were very professional, were quick to visit the property when we were ready for an inspection, and they caught a number of mistakes the contractors we used had made during the construction process.
We started designing the project in March 2017 and soon-after began the site preparation by installing a concrete retaining wall and foundation and placing the two bottom 20-foot containers. Our contractor delivered the half-finished 40-foot container in June. We had a small contractor crew onsite for a few more weeks who helped move the project forward.
The original contractors left the job site before the cabin was completed, leaving us in a pretty big bind that we didn’t anticipate. Because we were unable to find another contractor with experience in shipping container construction fast enough, we decided to finish the job ourselves! We actually had to re-do a lot of the original work and so it took us about another month to pass the inspection for our certificate of occupancy, which we received in early August 2017.
During the original phase of the project, we had spent almost every day onsite from dawn to dusk working on the project, and it was pretty exhausting. I actually lived on site for nearly two months in a pop-up camper!
After we received the certificate of occupancy and the major systems were in place, including the plumbing, septic, electrical, water, HVAC, we were able to work on weekends about once a month for the next 18 months to finish the cabin.
The cost of our container cabin was about $175,000, excluding the cost of the land:
- Site Preparation: $20,000
- Foundation: $15,000 (impossible to complete the project without this in place)
- Containers (delivered and modified): $10,000 (it’s amazing that we even got the container to the top of the mountain!)
- Water (Hookup to existing well): $10,000 (the water system was our biggest challenge)
- Insulation: $7,500 (Closed Cell Foam)
- HVAC: $6,500
- Septic System: $7,500
- Composite Decking: $20,000 (We chose to use the expensive decking material so that it would survive the climate)
- All Other Building Materials: $33,500
- Contractor Services: $40,000
- Legal, Permits, etc: $5,000
Over the two years that we’ve been hosting short term renters, we’ve learned that people rent our cabin for a combination of five reasons: a) the location (the views are amazing), b) the modern container structure, c) the tiny home experience, d) the affordable price and e) the proximity to all the adventures in our area (waterfalls, antique shopping, great restaurants and access to large cities and airports).
One of the greatest joys of building our shipping container cabin has been sharing it with others via platforms like Airbnb, Homeaway, and VRBO. We have had a really great experiences renting our cabin and almost all of our guests have been really respectful of our property and great to work with.
We did have one bad experience with a guest that caused significant damage when they hosted a party on our property. It took us nearly two months to repair all the damage and get it back online. We learned the hard way that not everyone will be respectful and that you need to guard your short term rental carefully.
We now have a property manager that manages our cabin when we are not there ourselves and meets all of our guests in person if we can not do it ourselves. We have also installed security cameras on the cabin and around the property and have installed a gate/fence system to prevent unauthorized access.
We haven’t charged much of a premium for our cabin because we really wanted to share it with others. We also don’t rent it out very often. Therefore, between family, friends and a few guests, we are usually booked out many months in advance. In the summertime, it’s near 90% occupancy. In the winter, it’s around 50%, but we also intentionally take it offline during the seasons where weather makes it harder to access the property. We do think that people would pay a premium for the experience.
The overall feedback has been strongly positive. We really enjoy reading the reviews our guests leave in our guest book as well as on Airbnb! We had one guest enjoy the experience so much that they hit the word submission limit on Airbnb’s website and his feedback was cut off because it was so long! He sent us the part that was cut off from their original post.
Unexpectedly, we have also become a destination for engagements and have two engagements on our property so far! The majority of our guests are married couples who are looking for a romantic getaway to the mountains.
We get inquires ALL THE TIME from guests who are interested in building their own container home. I estimate about 10% of those who rent our property are doing so because they intend to build their own container structure in the near future. It’s really fun to talk to them about the experience we had and for us to be able to give them advice as they set off on their own journey.
Overall, we couldn’t be happier with our container cabin and are already starting to design our next project! It has been one of the best investments we have made financially, but we’ve also really enjoyed the people we’ve met and the memories we’ve made.
When we set out to build our cabin, we wanted to invest in the community as much as possible. We intentionally choose to hire local contractors during the construction phase, and we employ community members when we need services such as cleaning, lawn care, etc. This has given us the opportunity to meet our neighbors, invest in others and build relationships that are more valuable than the cabin itself.
We never plan to sell our property and expect to keep it in our family for generations, so it’s important for us to build strong relationships within our community. It’s not the easiest or most cost-effective approach, but it’s definitely been an intentional decision that we do not regret.
Interested in Container Homes? You need our FREE cheat sheets to help decide if containers are right for you!